 |
Kurzfristig vor der Bauausschußsitzung übergab
die Verwaltung den Ausschußmitgliedern eine ergänzende
Stellungnahme der CIMA, angefertigt im Mai 2006, zur ECE-Ansiedlung.
Im Bauausschuß wiesen Ausschußmitglieder der
Grünen und der Linkspartei darauf hin, daß
laut CIMA-Fazit die zunächst positiv erscheinende
Ansiedlung des ECE-Centers nur bei einer "isolierten
Betrachtung" gelte.
Ratsherr Siek (Grüne) zitierte weiter aus dem Ergänzungsgutachten:
"Es muß berücksichtigt werden, daß
bereits durch die Ansiedlung von Möbel Buss und die
Veränderungen in Wechloy negative Auswirkungen auf
die Innenstadt entstehen oder entstanden sind und dort
Verdrängungseffekte ausgelöst werden. Die Ansiedlung
eines Shoppingcenters träfe folglich auf eine bereits
geschwächte Innenstadt."
Die Verwaltung verwies auf die Feststellung der CIMA,
daß die "kaum gebremste" Entwicklung außerhalb
der Innenstadt die Herausforderung für die Stadtentwicklung
darstelle, nicht aber das Shopping-Center.
Im ergänzenden CIMA-Gutachten wurde die Verträglichkeit
der ECE-Ansiedlung unter Berücksichtigung der beiden
Einzelhandelsgroßprojekte Möbel Buss und der
Erweiterung von "famila" in Wechloy beurteilt.
Alle weiteren Einzelhandelsgroßprojekte, die derzeit
von der Verwaltungsspitze vorbereitet werden bzw. realisiert
werden könnten und die zu veränderten Rahmenbedingungen
für die Beurteilung des ECE-Centers führen (nämlich
die angekündigte IKEA-Ansiedlung, Erweiterung des
real- und Baumarktes in Etzhorn am Stubbenweg, geplante
Ansiedlung eines Verbrauchermarktes "kaufland"
und Läden auf dem ehemaligen VfB-Platz in Donnerschwee,
Ansiedlung eines Verbrauchermarktes und Geschäften
auf dem VWG-Gelände) sind in der ergänzenden
Stellungnahme nicht betrachtet worden.
In der letzen Bauausschußsitzung, an der auch die
Mitglieder des Verkehrsausschusses sowie Oberbürgermeister
Dietmar Schütz (SPD) teilnahmen, wurde nach langer
Debatte über die Bebauungsplanentwürfe für
das ECE-Center/Umbau Bremer Landesbank/Neubau Landessparkasse
zu Oldenburg abgestimmt.
Für das ECE-Großprojekt im Schloßareal
stimmten folgende Bauausschuß-Vertreter der SPD-
und FDP-Ratsfraktionen: Bauausschußvorsitzende Ursula
Burdiek (SPD), Werner Kaps (SPD), Joachim Mühlbradt
(SPD), Alfred Nehring (SPD), Sibylle Neumann-Gäßler
(SPD), Nils Krummacker (FDP).
Ob der Rat dieser Beschlußempfehlung folgen wird,
wird sich auf der öffentlichen Ratssitzung am 26.6.2006
zeigen.
Ein ergänzender Kurzbericht zur Bauausschußsitzung
steht hier als PDF-Download zur Verfügung.
PDF-Download
Aufgrund der Vorgänge in der gestrigen Sitzung des
Bauausschusses, die fehlende Einwendungen von Bürgerinnen
und Bürgern zum aktuellen Bebauungsplanverfahren
ECE/BLB/LzO betreffen, hat die Bürgerinitiative gegen
Stadtzerstörung eine Pressemitteilung herausgegeben.
Die Pressemitteilung kann hier abgerufen werden.
PDF-Download
Unter Tagesordnungspunkt
5 berichtet die Verwaltung in der
Bauausschußsitzung über das Sanierungsgebiet
Burgstraße/Abraham und
die dort geplante Pflasterung und Neugestaltung.
Der Bericht steht hier als pdf-Download zur Verfügung
(Quelle: Stadt Oldenburg, Vorlagen-Nr. 06/0416 für
die öffentliche ASB-Sitzung am 19.6.2006).
PDF
Download - Burgstraßenviertel
Wie
die Nordwest Zeitung am 3.5.2006 berichtete, hat die oberste
Denkmalschutzbehörde Niedersachsens in ihrer Stellungnahme
zu den Bebauungsplanentwürfen ECE/LzO/BLB angesichts
der "Dominanz und Massivität des geplanten Bauwerks"
im historischen Schloßareal Oldenburgs erhebliche
denkmalpflegerische Bedenken gegen das geplante Vorhaben
ECE-Einkaufszentrum vorgetragen. Nach Ansicht der Landesbehörde
bestehe zudem das Risiko, daß "die Bebauungspläne
in der jetzt bestehenden Form einer rechtlichen Überprüfung
nicht standhalten".
Nachdem die Stadt Oldenburg in ihrer Pressemitteilung
vom 3.5.2006 mitteilte, daß sie die Stellungnahme
der Landesdenkmalpflege "mit Verwunderung zur Kenntnis
genommen" habe, gleichzeitig aber einräumen
mußte, daß eine Einigung zwischen Denkmalpflege
und Stadt Oldenburg nicht erzielt werden konnte, reagierte
das niedersächsische Kultusministerium in einer Pressemitteilung
vom 4.5.2006 auf die Darstellung von Stadtbaurat Dr. Pantel.
Darin erklärt das Ministerium, die Landesdenkmalpflege
sei von der - insoweit zuständigen - Stadt Oldenburg
seit dem begrenzten Realisierungswettbewerb (Frühsommer
2005) nicht mehr in die Planungen zum Schloßareal
einbezogen worden. Stattdessen seien auf Initiative der
ECE stattfindende Gespräche von Stadtbaurat Dr. Pantel
im Februar 2006 abgebrochen worden. Das Ministerium sieht
eine ordnungsgemäße Wahrnehmung der denkmalfachlichen
Belange durch die Stadt Oldenburg nicht gewährleistet.
Die Versäumnisse
der Verwaltungsspitze der Stadt Oldenburg im Bereich
Denkmalpflege erinnern an die erst kürzlich beklagte,
fehlende Einbeziehung des Oberkirchenrates am Bauleitverfahren
insbesondere hinsichtlich der Auswirkungen der geplanten
Bebauung auf das Oldenburger Wahrzeichen und Baudenkmal,
die Lambertikirche. Die Pressemitteilungen von Stadt
und Kultusministerium können über folgende
Links abgerufen werden:
Pressemitteilung
der Stadt vom 3.5.2006
Pressemitteilung Ministerium vom 4.5.20066
Nach Angaben der Stadt Oldenburg
wurden ca. 600 Stellungnahmen zu den Bebauungsplanentwürfen
ECE-Center/Neubau Landessparkasse zu Oldenburg/Erweiterung
Bremer Landesbank innerhalb der Auslegungsfrist - die
kurz nach den Schulferien endete - abgegeben. Zum Vergleich:
Bei dem kürzlich ausliegenden Bebauungsplan für
die großflächige Einzelhandelsflächen-Erweiterung
von "famila" am Posthalterweg wurden insgesamt
11 Einwendungen erhoben.
Die Absender der Stellungnahmen werden in den letzten
Tagen zunächst ein Schreiben der Stadt Oldenburg
erhalten haben, in dem der Eingang der Stellungnahme
bestätigt wurde. Die inhaltliche Auseinandersetzung
mit den einzelnen Einwendungen erhalten die Absender
voraussichtlich in den nächsten Wochen mit einem
weiteren Schreiben der Stadt, nachdem sich die Ratsgremien
mit den Stellungnahmen befasst haben.
Zur allgemeinen Information können hier einzelne
anonymisierte Stellungnahmen von Bürgerinnen und
Bürgern zu den Bebauungsplanentwürfen der
Vorhaben ECE, Bremer Landesbank und Landessparkasse
zu Oldenburg als pdf-Download abgerufen werden.
Diese Einwendungen und die Postkartenvordrucke der Bürgerinitiative
gegen Stadtzerstörung wurden unter hunderten anderen
während der Auslegungsfrist der Planentwürfe,
die am 21.4.2006 endete, eingereicht.
PDF
Download - Stellungnahme 1
PDF
Download - Stellungnahme 2
PDF
Download - Stellungnahme 3
PDF
Download - Stellungnahme 4
PDF
Download - Stellungnahme 5
PDF
Download - Postkarte 1
PDF
Download - Postkarte 2
PDF
Download - Postkarte 3
Die in den Bebauungsplanentwürfen zu ECE/Bremer
Landesbank angestrebten Einzelhandelsverkaufsflächen
sollen - ohne die Flächen der mit dem Center verbunden
Galeria Kaufhof mit 11.000 qm - 16.200qm betragen. Um
eine Größenvorstellung zu bekommen:
Gegenüber dem Oldenburger Schloß soll flächenmäßig
mehr Einzelhandel neu entstehen, als bereits heute die
zusammengerechneten Verkaufsflächen der folgenden
Innenstadt-Unternehmen anbieten: Saturn im CCO (3.300
qm), Esprit in der Achternstraße (1.000 qm), C
& A (3.000 qm), Thalia Buchhandlung (1.300 qm),
C.W. Meyer (2.300 qm), Bruns (4.000 qm), H & M (1.200
qm).
Alle Zahlenangaben beruhen auf dem CIMA-Gutachten 2004,
Seite 42 der Kurzfassung.
Zu den Einzelhandelsverkaufsflächen kommen weitere
Flächen für Gastronomie, Dienstleistungen,
sieben Wohnungen, Lagerflächen, Technik und Anlieferung
hinzu. Allein das ECE-Vorhaben "Schlossgalerie
Oldenburg" soll ohne Parkhausflächen eine
Geschossfläche von insgesamt etwa 36.000 qm haben.
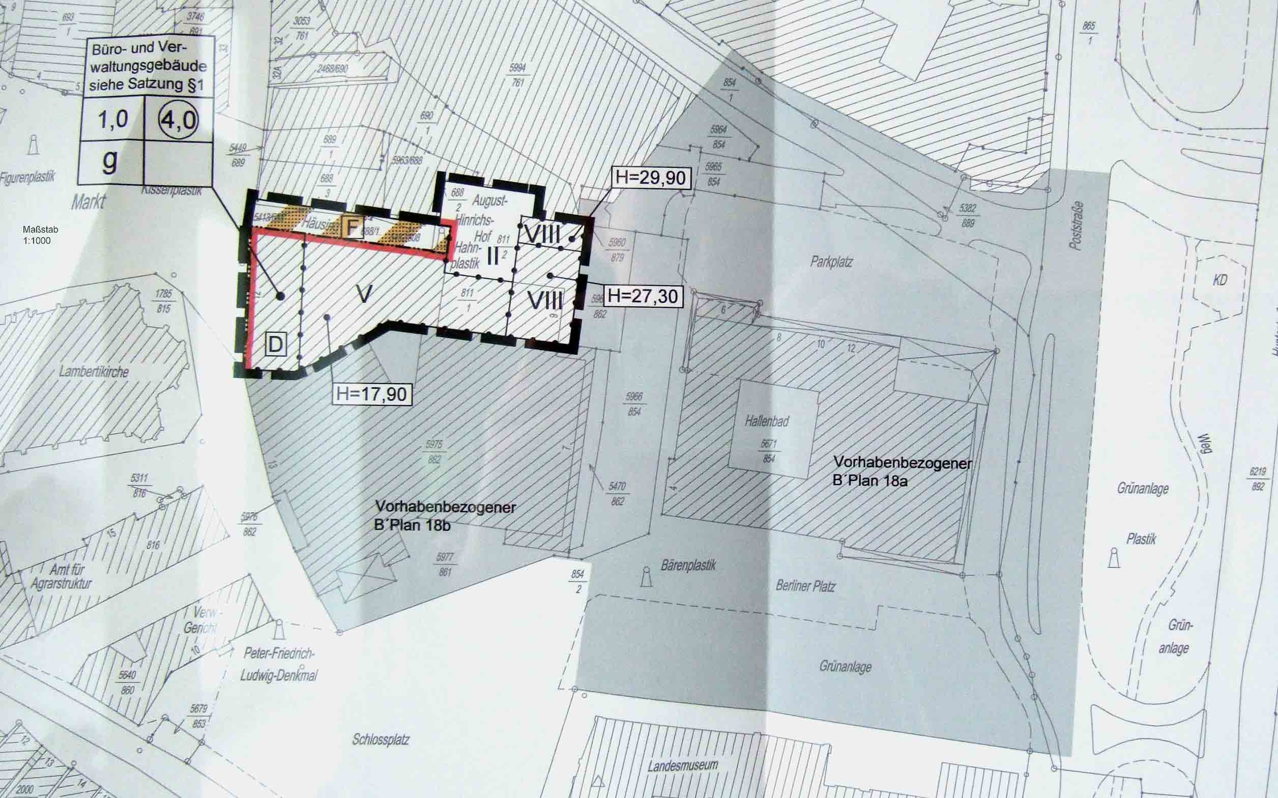
Im Bebauungsplanentwurf Nr.18a (ECE-Center) ist für
das Einkaufszentrum eine Geschoßflächenzahl
von 4,0 vorgesehen. Ähnliche Festsetzungen sollen
für den Umbau der Bremer Landesbank (GFZ = 4,0)
und den Neubau der Landessparkasse zu Oldenburg (GFZ
= 5,0) gelten.
Sehr vereinfacht umschrieben legt die GFZ fest, wie
stark ein Baugrundstück im Verhältnis zur
Grundstücksfläche bebaut werden darf. So soll
das Vorhaben ECE-Center auf einer Grundstücksfläche
von ca. 10.000 qm entstehen. Würde die Stadt beispielsweise
eine GFZ von 1,0 festsetzen, würde dies bedeuten,
daß die gesamte Geschoßfläche ebenso
groß wäre wie die Grundstücksfläche,
also 10.000 qm. Man könnte beispielsweise ein zweigeschossiges
Gebäude mit jeweils 5.000 qm Geschoßfläche
pro Geschoß errichten oder aber ein viergeschossiges
Gebäude mit jeweils 2.500 qm Geschoßfläche
je Geschoß.
Im ECE-Center-Entwurf ist eine sehr viel stärkere
Grundstücksausnutzung als im Beispiel vorgesehen:
Bei einer GFZ von 4,0 wäre eine maximale Geschoßfläche
von ca. 40.000qm zulässig - ohne Stellplatzflächen.
Der Entwurf regelt ausdrücklich, daß die
Stellplatzflächen bei der Ermittlung der Geschoßfläche
unberücksichtigt bleiben sollen.
"Zur Mühlenstraße können die Grenzabstände
ebenfalls nicht eingehalten werden. Die geplante Bebauung
lässt sich unter Beachtung der bauordnungsrechtlich
erforderlichen Grenzabstände nicht umsetzen, da
die verbleibende Abstandsfläche zu gering ist.
Daher sind auch in diesem Bereich Baulinien festgesetzt.
Die Baulinienfestsetzung erfolgt aus besonderen städtebaulichen
Gründen.
Ziel ist die Wiederherstellung eines erlebbaren Straßenraums
in Anlehnung an die historische Bebauungsstruktur."
Aus der Satzungsbegründung der Stadt Oldenburg
zum Entwurf des vorhabenbezogener Bebauungsplan Nr.
18 a
(Schloßplatz/Berliner Platz - ECE Einkaufszentrum),
Maß der baulichen Nutzung, Seite 35.
Anmerkung: An der Mühlenstraße sieht der
Entwurf eine 23m senkrecht in die Höhe steigende
sechsgeschossige Fassade (einschließlich Erdgeschoß)
des ECE-Centers und Parkhauses vor. Der heutige Parkplatz
am alten Hallenbad soll vollständig überbaut
werden.
" Das Vorhaben rekrutiert aber auch einen erheblichen
Teil seines Planumsatzes durch Verdrängung: rund
57% des Center-Umsatzes werden anderen Betrieben abgenommen
(34,3 Mio. Euro), davon 20,6 Mio. Euro anderen Betrieben
in der Innenstadt... Ob und inwieweit diese Umsatzverluste
durch Umsätze der neu an Oldenburg gebundenen Kunden
kompensiert werden können, wird von Betrieb zu
Betrieb völlig unterschiedlich sein und hängt
vom Standort und der Fähigkeit ab, sich unternehmerisch
auf die neue Wettbewerbssituation einzustellen."
Aus der Satzungsbegründung der Stadt Oldenburg
zum Entwurf des vorhabenbezogener Bebauungsplan Nr.
18 a
(Schloßplatz/Berliner Platz - ECE Einkaufszentrum),
Verträglichkeit des Vorhabens, Seite 9
Zu den Bebauungsplanentwürfen Nr.18a (ECE), Nr.18
b (Landessparkasse zu Oldenburg) und Nr. 18 c (Bremer
Landesbank) sind die zeichnerischen Festsetzungen hier
als Foto abrufbar. Die Pläne hängen bis zum
21.4.2006 im Stadtplanungsamt öffentlich aus (Eingang
C, 2.Stock, Auskunft Zimmer 242). Einsicht genommen
werden kann zudem in die Umweltberichte und diverse
Gutachten (CIMA I, CIMA II, Regionalverträglichkeitsgutachten
der CIMA).
Bild
zum Thema - Bebauungsplan ECE-Center Zeichnung
Bild
zum Thema - Planzeichenerklärung ECE
Bild
zum Thema - Bebauungsplan Bremer Landesbank Zeichnung
Bild
zum Thema - Bebauungsplan LzO Zeichnung
Link
zum Thema - Historischer Lageplan des Schloßareals
"Der Grünstreifen um das Schloss soll reduziert
werden, um die Aufenthaltsqualität der Platzbereiche
zu erhöhen."
Aus der Satzungsbegründung der Stadt Oldenburg
zum Entwurf des vorhabenbezogener Bebauungsplan Nr.
18 a
(Schloßplatz/Berliner Platz - ECE Einkaufszentrum),
städtebauliche Begründung, Seite 5.
"Schlossplatz und der Berliner Platz gehören
zu den sowohl geschichtlich (Schlossfreiheit) als auch
stadträumlich wichtigsten Bereichen der Stadt Oldenburg.
Übergeordnetes Ziel soll es sein, hier wieder Orte
mit hoher Urbanität, gestalterischer sowie funktionaler
Attraktivität und dadurch ausgeprägter Identifikationsmöglichkeit
für Bürger und Gäste der Stadt zu schaffen."
Aus der Satzungsbegründung der Stadt Oldenburg
zum Entwurf des vorhabenbezogenen Bebauungsplan Nr.
18 a Schlossplatz/Berliner Platz - ECE Einkaufszentrum),
Ziele der Planung, Seite 1.
Der Entwurf des Bebauungsplans Nr.18a nebst Umweltbericht
kann während der Auslegungsfrist im Technischen
Rathaus, Industriestr.1, eingesehen werden und ist hier
als pdf-download abrufbar (Quelle: Stadt Oldenburg,
Vorlagen-Nr. 06/0152 vom 17.2.2006 für die Bauausschußsitzung).
Die Möglichkeit, Einwendungen zu erheben, endet
kurz nach Ferienende am Freitag, 21.4.2006. Das Technische
Rathaus ist im Regelfall zwischen 8-15.30 Uhr geöffnet,
Freitags nur bis 12 Uhr. Anregungen und Bedenken können
während der Öffnungszeiten dort auch mündlich
zur Niederschrift vorgetragen werden.
Übrigens: um Anregungen, Änderungswünsche
und Bedenken geltend zu machen, müssen Sie nicht
Eigentümer oder Oldenburger sein.
Kaufleute und Unternehmen sollten zusätzlich die
IHK als Träger öffentlicher Belange über
ihre Anregungen und Bedenken informieren, denn als Vertreter
der Wirtschaft nimmt die IHK regelmäßig zu
Bebauungsplänen Stellung.
PDF
Download - Auslegungsbeschluß vom 2.3.2006
PDF
Donwload - Satzungstext
PDF
Download - Satzungsbegründung
PDF
Download - Ansichten, Pläne
PDFDownload
- Umweltbericht
Link
zum Thema - öffentlichen Bekanntmachung der
Stadt vom 11.3.2006
Link
zum Thema - Grundrisse auf der Homepage der Stadt
Oldenburg
(nicht dem neuesten Stand der Planung entsprechenden.
Die Höhenangaben auf der Internetseite der Stadt
wurden korrigiert.)
Weitere Informationen zur ECE-Planung, die auf dieser
Internetseite bereits veröffentlicht wurden, sind
ergänzend zu den Bebauungsplanentwürfen hier
als pdf-downloads abrufbar. Das "Verträglichkeitsgutachten
für die Ansiedlung eines Shopping-Centers in Oldenburg"
der CIMA vom 3.12.2004 kann an dieser Stelle nicht mehr
als Link zur Verfügung gestellt werden, da die
Stadt Oldenburg dieses Dokument leider aus ihrem Internetangebot
entfernt hat. Im Stadtplanungsamt besteht jedoch weiterhin
die Möglichkeit, vor Ort Einsicht in das CIMA-Gutachten
zu nehmen.
PDF
Download - Denkmalpflegerische Stellungnahme vom
07.12.01 für das Oldenburger
Schloßareal
PDF
Download - Städtische Rahmenbedingungen für
die Projektentwicklung Schloßplatz
April 2004
PDF
Download - "Zielkonzept Innenstadt 2008"
der Stadt Oldenburg
PDF
Download - Künftige Einzelhandelsvorhaben der
Stadt Oldenburg
PDF
Download - Alternativplanungsentwurf der Kommunalpolitischen
Vereinigung
PDF
Download - Bericht der Stadt über die Bürgerversammlung
vom 13.12.05
PDF
Download - Um was geht´s bei der Bauleitplanung
PDF
Download - Häufig gestellte Fragen (FAQ)
Link
zum Thema - Öffentlichen Bekanntmachung nebst
Rechtsbehelfsbelehrung der Stadt vom 6.3.2006, mit der
Teile der Häusing (August-Hinrichs-Hof) dem öffentlichen
Verkehr entzogen werden. Hierdurch verliert der August-Hinrichs-Hof
seine Eigenschaft als öffentliche Straße.
Das heißt: Dieser Bereich der Häusing zwischen
Galeria Kaufhof / Bremer Landesbank und Berliner Platz
steht dann der Allgemeinheit zur Nutzung nicht mehr
zur Verfügung.
Im Zusammenhang mit dem ECE-Projekt plant die Bremer
Landesbank (BLB) am Markt - ebenso wie die LzO - umfangreiche
Umbaumaßnahmen am bestehenden Gebäude und
an der Häusing, eine Umnutzung vorhandener Flächen
für künftigen Einzelhandel (ca. 900 qm) und
die Integration des Erdgeschosses in das geplante Einkaufszentrum.
Für das BLB-Vorhaben liegt ein eigenständiger
Bebauungsplanentwurf Nr.18c vor, der hier als pdf-Download
zur Verfügung gestellt wird (Quelle: Stadt Oldenburg,
Vorlagen-Nr.06/0155 vom 17.2.2006 für die Bauausschußsitzung).
Die Möglichkeit, Einwendungen zu erheben, endet
kurz nach Ferienende am Freitag, 21.4.2006.
PDF Download - Auslegungsbeschluß
PDF
Download - Satzungstext
PDF
Download - Satzungsbegründung
PDF
Download - Ansichten; Schnitte
Link
zum Thema - Öffentliche Bekanntmachung der
Stadt vom 11.3.2006:
Für das LzO-Neubauvorhaben im Schloßareal
liegt ein eigenständiger Bebauungsplanentwurf Nr.18b
vor, der hier als pdf-Download zur Verfügung gestellt
wird (Quelle: Stadt Oldenburg, Vorlagen-Nr.06/0154 vom
17.2.2006 für die Bauausschußsitzung).
Die Möglichkeit, Einwendungen zu erheben, endet
kurz nach Ferienende am Freitag, 21.4.2006.
PDF
Download - Auslegungsbeschluß
PDF
Download - Satzungstext
PDF
Download - Satzungsbegründung
PDF
Download - Ansichten; Schnitt
PDF
Download - Umweltbericht
Link
zum Thema - Öffentliche Bekanntmachung der
Stadt vom 11.3.2006
|